Wohnungen in neuem Komplex mit Pool in Desenzano del Garda

3-Zimmer-Wohnung im Verkauf zu Desenzano del Garda

Wohnungen in neuem Komplex mit Pool in Desenzano del Garda

Via Tassere Desenzano del Garda BS Italia

Verkauf

349.000€

  • imm_57839-20250624154830-1280-_Watermark_png_mc.jpeg
  • imm_67179-20250624154833-1280_Watermark_png_mc
  • imm_67178-20250624154837-1280_Watermark_png_mc
  • imm_57840-20240613142055-1280_Watermark_png_mc.jpeg
  • imm_67177-20250624154842-1280_Watermark_png_mc
Betten
2
Badezimmer
2
Kommerziell
98,12 mq

BESCHREIBUNG

In geringer Entfernung zu den Stränden und dem Zentrum von Rivoltella del Garda, in bequemer Lage nahe aller Dienstleistungen und der Hauptverkehrsstraßen, eingebettet in ein neu entwickeltes Wohngebiet, bieten wir ein elegantes und modernes Wohnprojekt mit 12 Wohneinheiten an.
Das Gebäude erstreckt sich über drei oberirdische Etagen, verfügt über Sonnenterrassen und eine Tiefgarage für Stellplätze.
Abgerundet wird das Projekt durch einen großzügigen Poolbereich mit weitläufiger Liegefläche.
Das Gebäude wird in Energieklasse A3 errichtet und überzeugt durch hervorragende Bauqualität, moderne technische Anlagen und hochwertige Materialien.
Das Projekt sieht die Realisierung von Zwei- und Drei-Zimmer-Wohnungen jeweils mit zwei Bädern vor.
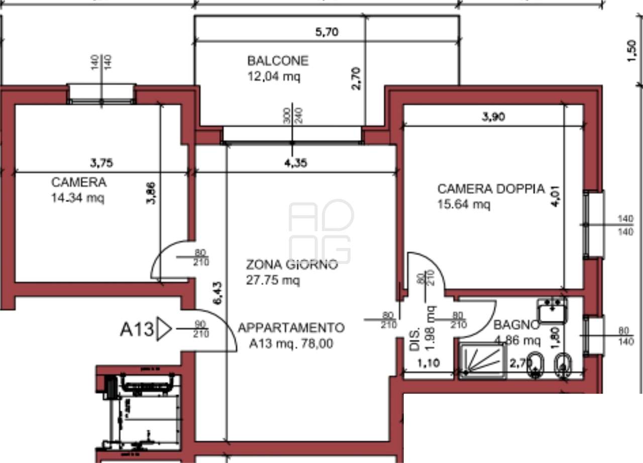
In diesem Exposé präsentieren wir eine der Wohnungen im ersten Obergeschoss, bestehend aus einem hellen Wohnbereich mit offener Küche und direktem Zugang zur großen überdachten Terrasse, einem praktischen Flur, einem Schlafzimmer mit Doppelbett, einem Badezimmer mit Dusche, einem zweiten geräumigen Schlafzimmer mit direktem Zugang zum Wohnbereich sowie einem zweiten Badezimmer.
In der Tiefgarage besteht die Möglichkeit, komfortable Garagen zu erwerben.
Eine ausgezeichnete Lösung als Erst- oder Zweitwohnsitz sowie als Investition.
Für weitere Informationen stehen wir Ihnen gerne zur Verfügung.

ZUSÄTZLICHE INFORMATION

  • Energieeffizienzklasse: A3
  • IPE-Minimum:
  • Heizung: Zentralheizung
  • Zustand: im Bau befindlich
  • Grad: gepflegt
  • Position: Vorort
  • Panorama: freie Sicht
  • Orientierung: Nord Osten
  • Räume/Zimmer: 3
  • Stock: 1
  • Baupläne: 4
  • Interne Ebenen: 1
  • Garage:
  • Mq Garage:
  • Parkplätze:
  • Terrassen: 1
  • Mq Terrassen: 12,04
  • Qm Balkone:
  • Arkaden:
  • Mq Arkaden:
  • Garten: gemeinschaftlich
  • Küche: offene Küche
  • Möbel: Übernahme möglich
  • Jährliche Ausgaben: 0

GRUNDRISSE

Gebäudeplan

KARTE

MEHR INFORMATIONEN







    (Klicken Sie hier, um die Informationen zu lesen)


    ANDERER VORSCHLAG