Недвижимость с проектом престижных вилл в Gardone Riviera

Вилла в Продажа в Gardone Riviera

Недвижимость с проектом престижных вилл в Gardone Riviera

Via Roma Gardone Riviera BS Italia

Продажа

Частные переговоры

  • imm_46431-20230626184605-1280-_Watermark_png_mc.jpg
  • imm_46428-20230205193616-1280-_Watermark_png_mc
  • imm_46429-20230205193616-1280-_Watermark_png_mc
  • imm_46430-20230205193616-1280-_Watermark_png_mc
  • imm_46432-20230205193616-1280-_Watermark_png_mc
  • imm_46433-20230205193616-1280-_Watermark_png_mc
  • imm_46434-20230205193616-1280-_Watermark_png_mc
  • imm_46435-20230205193616-1280-_Watermark_png_mc
коммерческий
1810 mq
Сад
1810 mq

ОПИСАНИЕ

Расположенный в красивом и элегантном месте, всего в 250 м от озера, состоящий из элегантных вилл, погруженный в абсолютное спокойствие и с отличной приватностью, мы предлагаем эту важную собственность, разделенную на два земельных участка с авторизованным проектом для строительства 2 престижных независимых вилл с большими садами и частными бассейнами. Открытые виды с видом на озеро с верхнего этажа. Площадь участка под виллу 1 составляет около 980 кв.м., а площадь участка под виллу 2 — около 830 кв.м. Предлагаемая цена — за участок под виллу 2, цена за участок под виллу 1 составляет 800 000 €. На прилагаемых фотографиях вы найдете рендер разрешенных проектов и предлагаемые планы разбивки на участки с указанием реализуемых площадей. Мы остаемся в вашем распоряжении для получения дополнительной информации, документации или осмотра.

ДОПОЛНИТЕЛЬНАЯ ИНФОРМАЦИЯ

  • Энергетический рейтинг: VA
  • IPE минимум:
  • Обогрев: Автономное
  • государственный: Требуется ремонт
  • степень: Элегантный
  • Должность: Озере
  • Панорама: Открытый
  • ориентация: Север Запад Юг Восток
  • Номера: 10
  • План: Земельные участки
  • Планы строительства: 2
  • Внутренние уровни: 2
  • Гараж:
  • Mq Гараж:
  • Парковочные места:
  • Террасы:
  • км Террасы:
  • Кв. Балконы:
  • пассажи:
  • км пассажи:
  • Сад: Собственный
  • Тип кухни: Отдельная
  • Мебель: Не мебелированая
  • Ежегодные расходы: 0

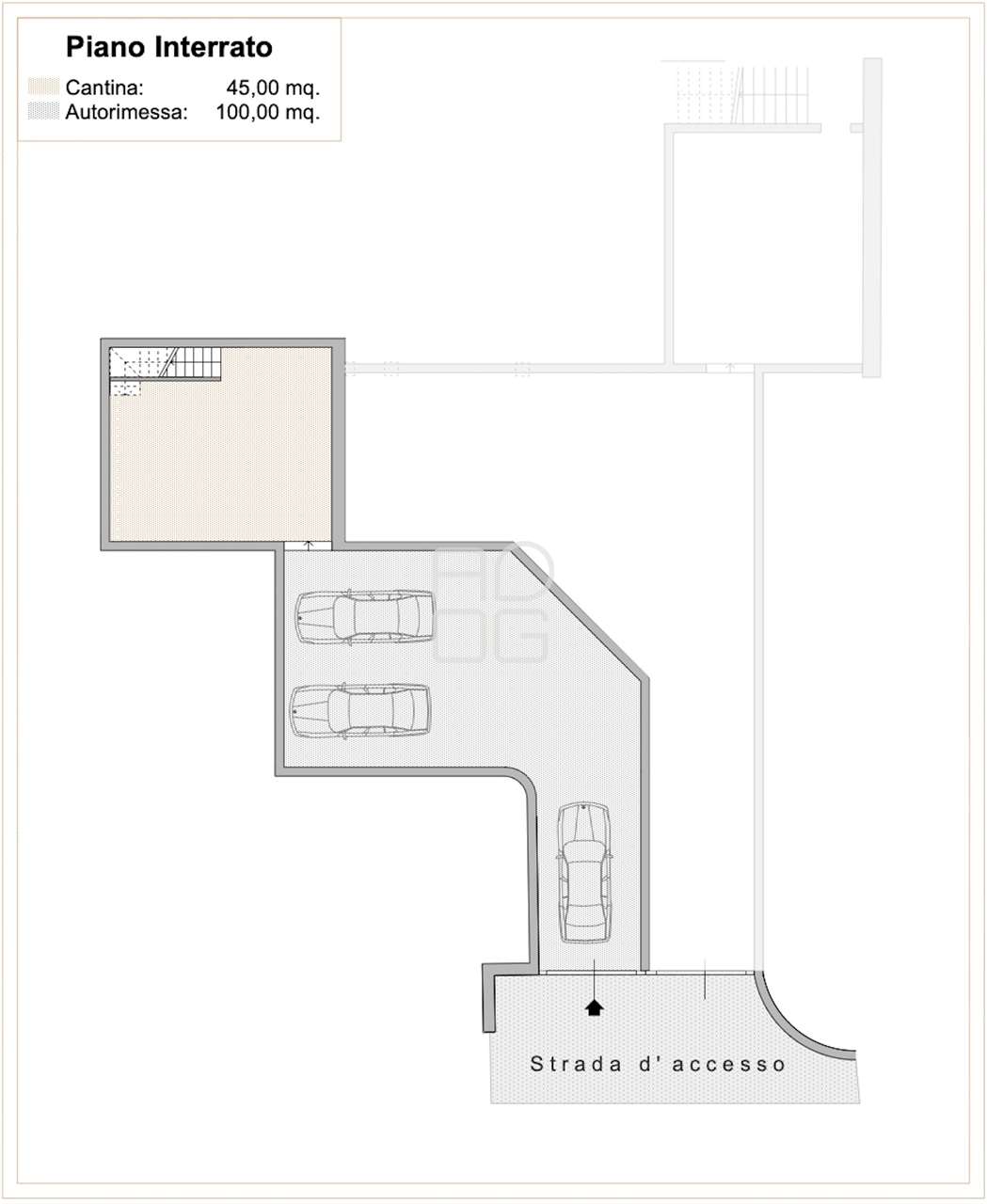
ПЛАНЫ

Поэтажный план

Поэтажный план

Поэтажный план

Поэтажный план

Поэтажный план

Поэтажный план

Поэтажный план

Поэтажный план

КАРТА

БОЛЬШЕ ИНФОРМАЦИИ







    (Нажмите здесь, чтобы прочитать информацию)


    ДРУГОЕ ПРЕДЛОЖЕНИЕ